微浮选气浮工作原理
一、微浮选气浮工作原理:
污水中的污染物分为溶解性有机物和非溶解性物质(即SS),溶解性有机物在一定条件下,可以转化为非溶液解性物质,污水处理的方法之一就是加入混凝剂和絮凝剂使大部分溶解性有机物转达化为非溶解性物质,再将全部或大部分非溶液解性物质(即SS)去除以达到净化污水的目的,而去除SS的主要方法就是利用气浮的方法。
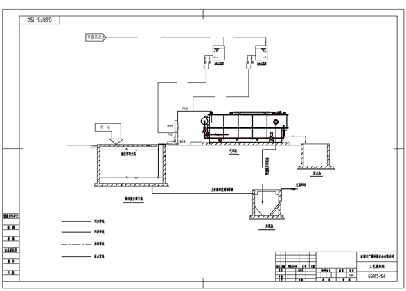
溶气罐产生溶气水,溶气水通过释放器减压释放到待处理的水中。溶解在水中的空气从水中释放出来,形成20-40um的微小细泡,微气泡同污水中的悬浮物结合,使悬浮物比重小于水,并逐渐浮到水面形成浮渣。水面上备有刮板系统,将浮渣刮入污泥池。清水从下部经溢流槽进入清水池。
气浮时向水中曝气,对去除水中的表面活性剂及臭味有明显的效果,同时由于曝气增加了水中的溶解氧,为后续处理提供了有利条件。

二、微浮选气浮溶气系统:
溶气系统主要由溶气罐、储气罐、空气压缩机、高压泵组成,溶气罐是系统中最关键的部分,其作用就是实现水和空气的充分接触,加速空气溶解。它是一个密闭耐压钢罐,内部设计有挡板、隔套、可以加速气体和水体的分散、传质过程,提高溶气效率。

三、微浮选气浮特点 :
1、系统采用集成化组合方式,有效减少空间需求,占地小,能耗低。
2、自动化程度高,操作方便,管理简单。
3、溶气效率高,处理效果稳定,根据需要,可调整溶气压力和溶气水回流比。
4、按不同的水质及工艺要求:可提供单溶气装置或双溶气装置。
5、采用可反冲释放器,提高溶气水的利用效率,同时保证设备工作稳定。

四、微浮选气浮应用领域:
1、分离地表水中细小悬浮物,藻类等微聚体;
2、回收工业废水中有用物质等;
3、代替二沉池分离和浓缩水中污泥等悬浮物;
4、塑料、石油、化工、造纸、皮革、印染、纺织、食品等加工行业。

五、微浮选气浮安装、调试:
(一)、安装
1、设备安装前,必须夯实地基。并用混凝土砂浆垫高100-150mm。也可架空安装,但基础必须能承担设备运行时的重量。
2、设备就位后需调整水平。
3、设备需设清洗用下水道,可挖明渠,也可直接采用管道接至调节池,以便冲洗气浮池的水排出去。
4、污水进口与反应池之间的联接管道,要求越短越好,以免絮凝体在管道中被破坏。
5、清水出口可接通下水道排放,如需进入下道处理工序,可直接与下道处理设备相接。
6、污泥出口可接至污泥槽或污泥处理设备。
7、电器箱一般应 放置在扶梯侧面,环境应干净、清洁。

(二)、调试:
A、设备调试前,应做好以下准备工作:
1、要清洗水池内所有的赃物、杂物。
2、对水泵及空压机等需要润滑部位进行加油润滑。
3、接通电源,启动水泵,检查转向是否与箭头所标方向一致。用手动控制启动空压机,检查空压机运转是否正常,发现异常情况应及时查清原因。
4、按下刮沫机开关,使其向溶气系统一端行走。运行到头后在行程撞块作用下,刮沫机反向行走,直到污泥槽,行程撞块将刮板翻起,按下停止按钮,停止刮沫。


返回首页
电话
产品中心