涂装污水处理设备实体销售商
一、涂装污水处理设备的介绍:
涂装污水处理设备设备应用新型溶气机理,自动回转式刮渣机。主要用于固-液或液-液分离。设计了新颖独特的溶气系统,通过溶气和释放系统在水中产生大量的微细气泡,使其粘附于废水中密度与水接近的固体或液体微粒上,造成整体密度小于水的状态,并依靠浮力使其上升至水面,达到去除SS和CODcr的目的。其优良的操作性能、卓越的处理效果,已在工业废水处理中得到充分体现。

二、涂装污水处理设备产品说明:
溶气气浮技术近年来广泛应用于给排水及废水处理中,它可以有效的去除水中难以沉淀的轻浮絮体。处理能力大、效率高、占地少、使用范围广,被广泛应用于石油、化工、印染、造纸、炼油、皮革、钢铁、机械加工、淀粉、食品等污水处理。
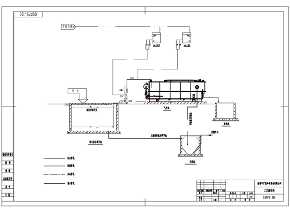
溶气系统:溶气系统主要由溶气罐、储气罐、空气压缩机、高压泵组成,溶气罐是系统中最关键的部分,其作用就是实现水和空气的充分接触,加速空气溶解。它是一个密闭耐压钢罐,内部设计有挡板、隔套、可以加速气体和水体的分散、传质过程,提高溶气效率。

三、涂装污水处理设备工作原理:
污水中的污染物分为溶解性有机物和非溶解性物质(即SS),溶解性有机物在一定条件下,可以转化为非溶液解性物质,污水处理的方法之一就是加入混凝剂和絮凝剂使大部分溶解性有机物转达化为非溶解性物质,再将全部或大部分非溶液解性物质(即SS)去除以达到净化污水的目的。
经加药反应后的污水进入气浮的混合区,与释放后的溶气水混合接触,使絮凝体粘附在细微气泡上,然后进入气浮区。絮凝体在气浮力的作用下浮向水面形成浮渣,下 层的清水经集水器流至清水池后,一部分回流作溶气使用,剩余清水通过溢流口流出。气

四、涂装污水处理设备产品特点 :
1、系统采用集成化组合方式,有效减少空间需求,占地小,能耗低。
2、自动化程度高,操作方便,管理简单。
3、溶气效率高,处理效果稳定,根据需要,可调整溶气压力和溶气水回流比。
4、按不同的水质及工艺要求:可提供单溶气装置或双溶气装置。
5、采用可反冲释放器,提高溶气水的利用效率,同时保证设备工作稳定


五、涂装污水处理设备应用领域:
1、分离地表水中细小悬浮物,藻类等微聚体;
2、回收工业废水中有用物质等;
3、代替二沉池分离和浓缩水中污泥等悬浮物;
4、塑料、石油、化工、造纸、皮革、印染、纺织、食品等加工行业


返回首页
电话
产品中心